BAKER’S KITCHEN
This small, dated kitchen needed major upgrades in order to improve overall function and beauty. We started with a consultation to capture all of the clients wishes and must haves. As a baker, the client was in dire need of countertop space and additional storage. Then our team designed 3 Space Plans to ensure that the client was absolutely satisfied with the end result. The plan that worked best for them, was option 1. We also consulted with the client on finishes to help them achieve the look they wanted within their budget.
BEFORE & AFTER
SPACE PLANS



OUTDOOR RETREAT
This client wanted to make better use of their backyard by adding a covered outdoor kitchen area with a water feature and place for their hot tub. 3D Visuals were requested to show how the final product would look.
CUSTOM BARNDOMINIUM
Some people know what they want, but don’t know how to put it all together. This project was for a couple who wanted a custom barndominium to entertain people. We provided Space Plans and very basic 3D visuals.


CABIN ADDITION
Cabins are cozy places to live, but tend to not be very functional. This client had a non-existent kitchen that needed to be transformed, along with other ideas that they wanted to see on paper. We provided 3 different space plans ranging from the least expensive to the most expensive. This project is still in progress, but the difference in the kitchen is astounding!
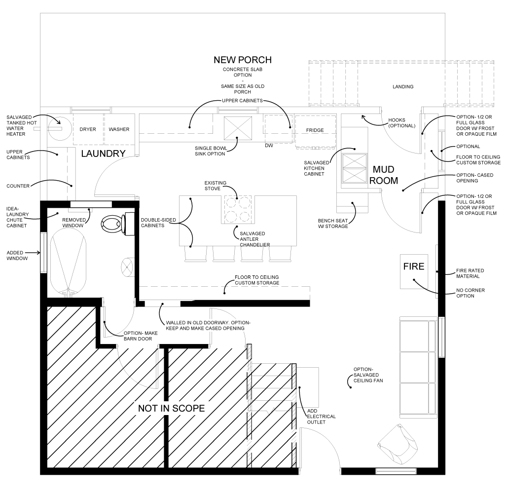
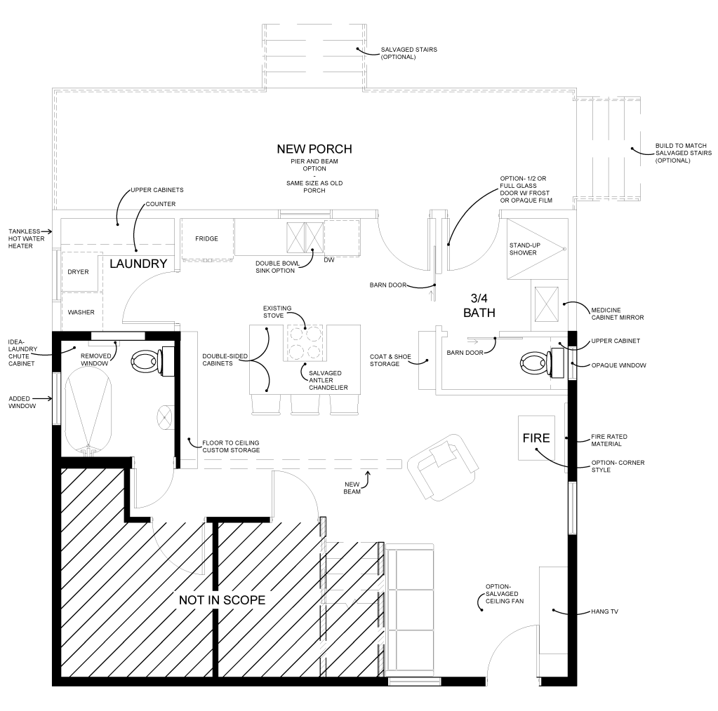
1902 FARMHOUSE
This working farmhouse built in 1902 with multiple poor remodels along the way, needed professional space planning. The upstairs was originally the attic, so angled ceilings and raised floor areas created a ton of challenges to achieve the wants of the homeowner.


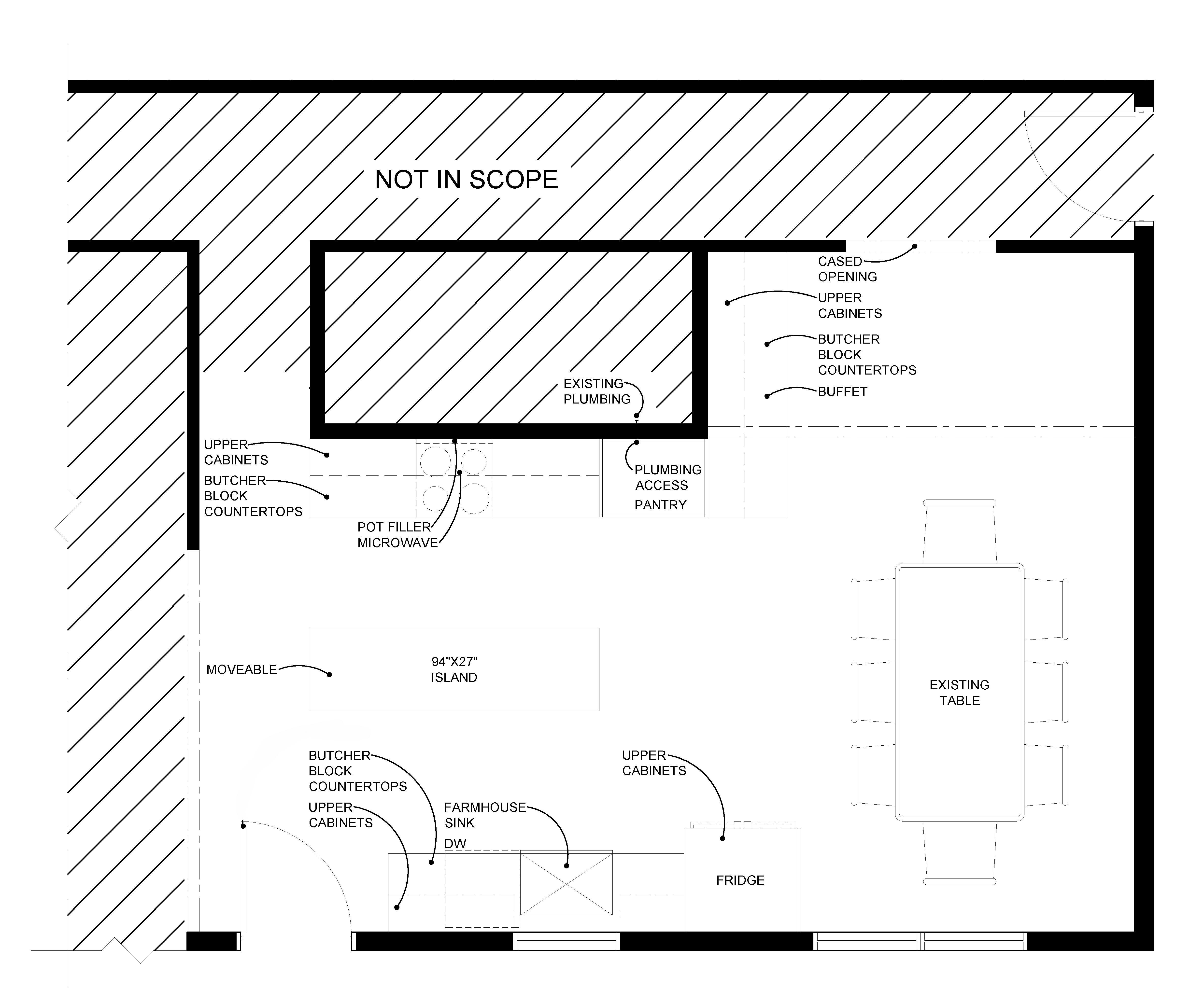
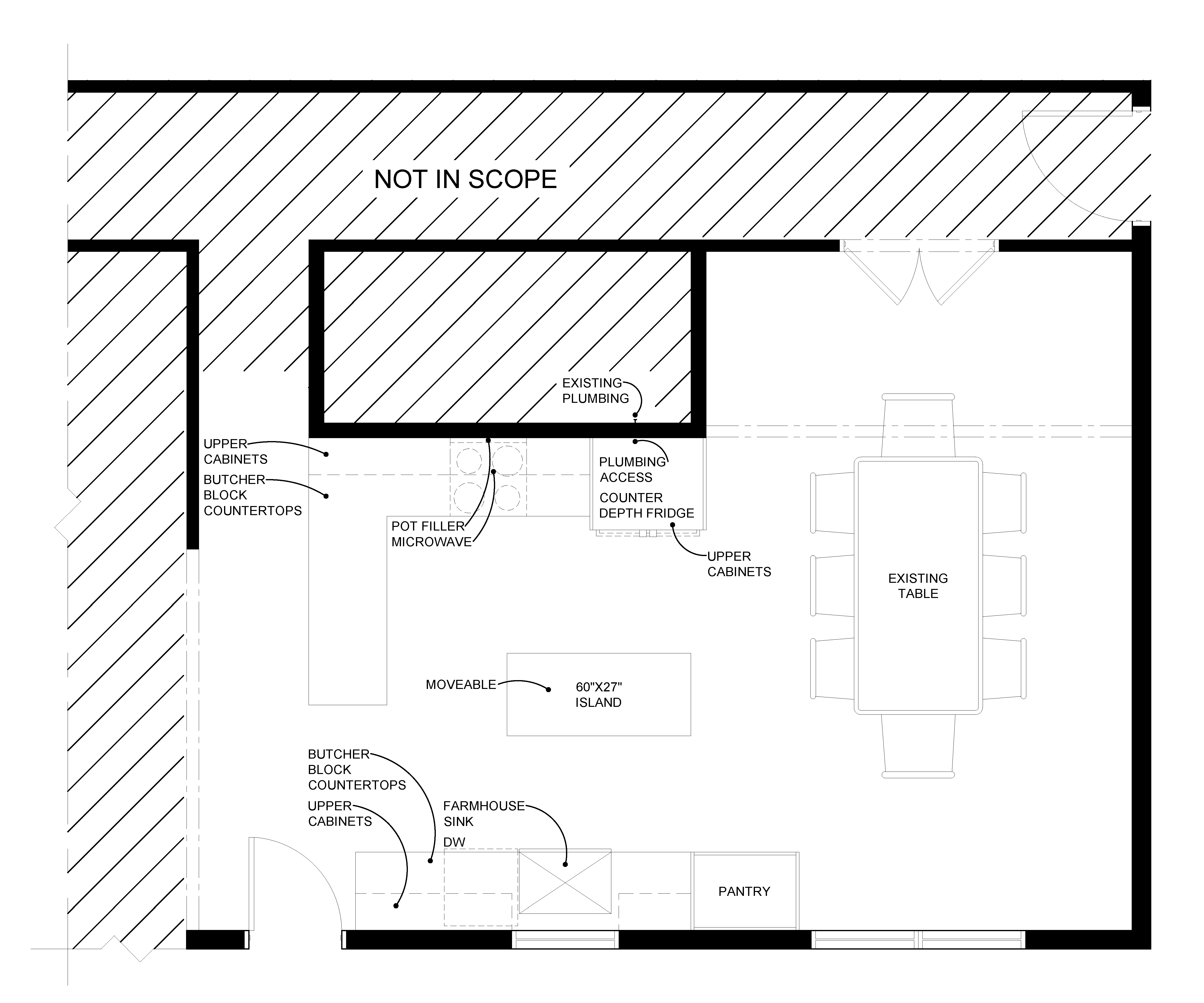
COUNTRY KITCHEN
Every house and client is different with a unique set of needs and challenges. Unfortunately, there is generally some compromise that occurs when working with an existing space. For example, this client had to decide if keeping the full-size, formal dining room was more important to them than the storage a walk-in pantry could provide. The formal dining table could be moved to the room to the left of the kitchen, but the pantry could not.



1928 KITCHEN & HALF BATH
This dated kitchen and half bath needed a major makeover. Check back for the final results!



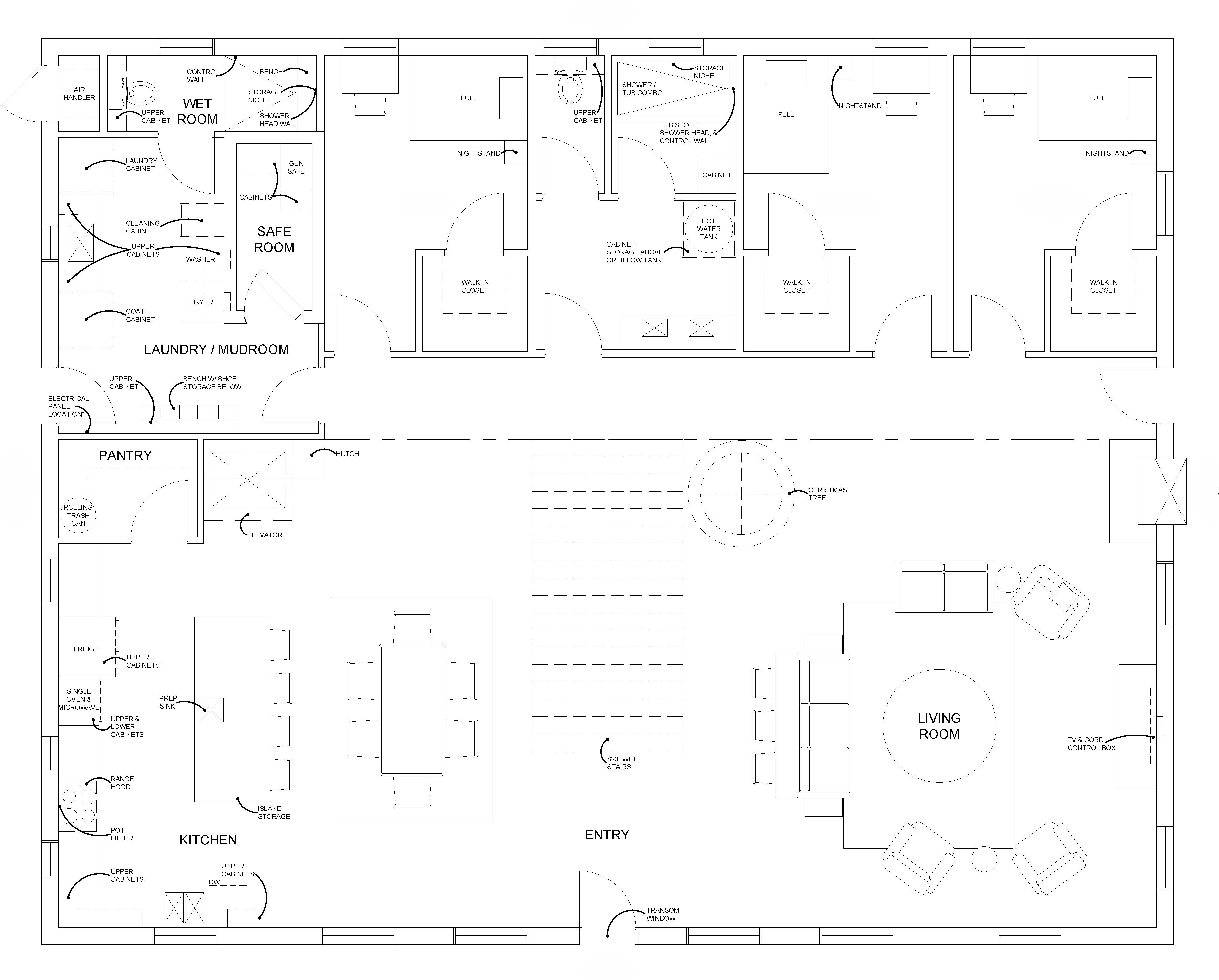
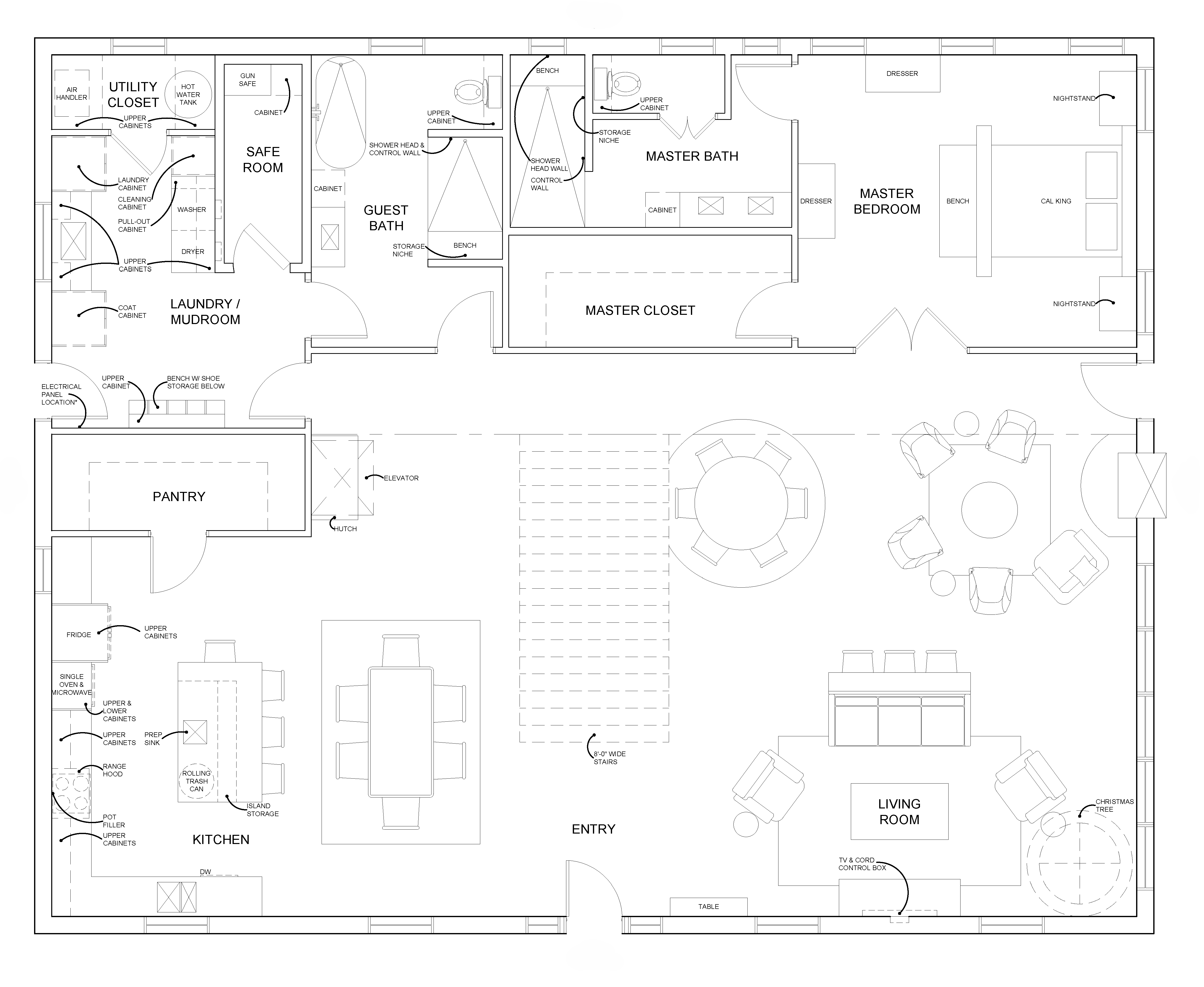
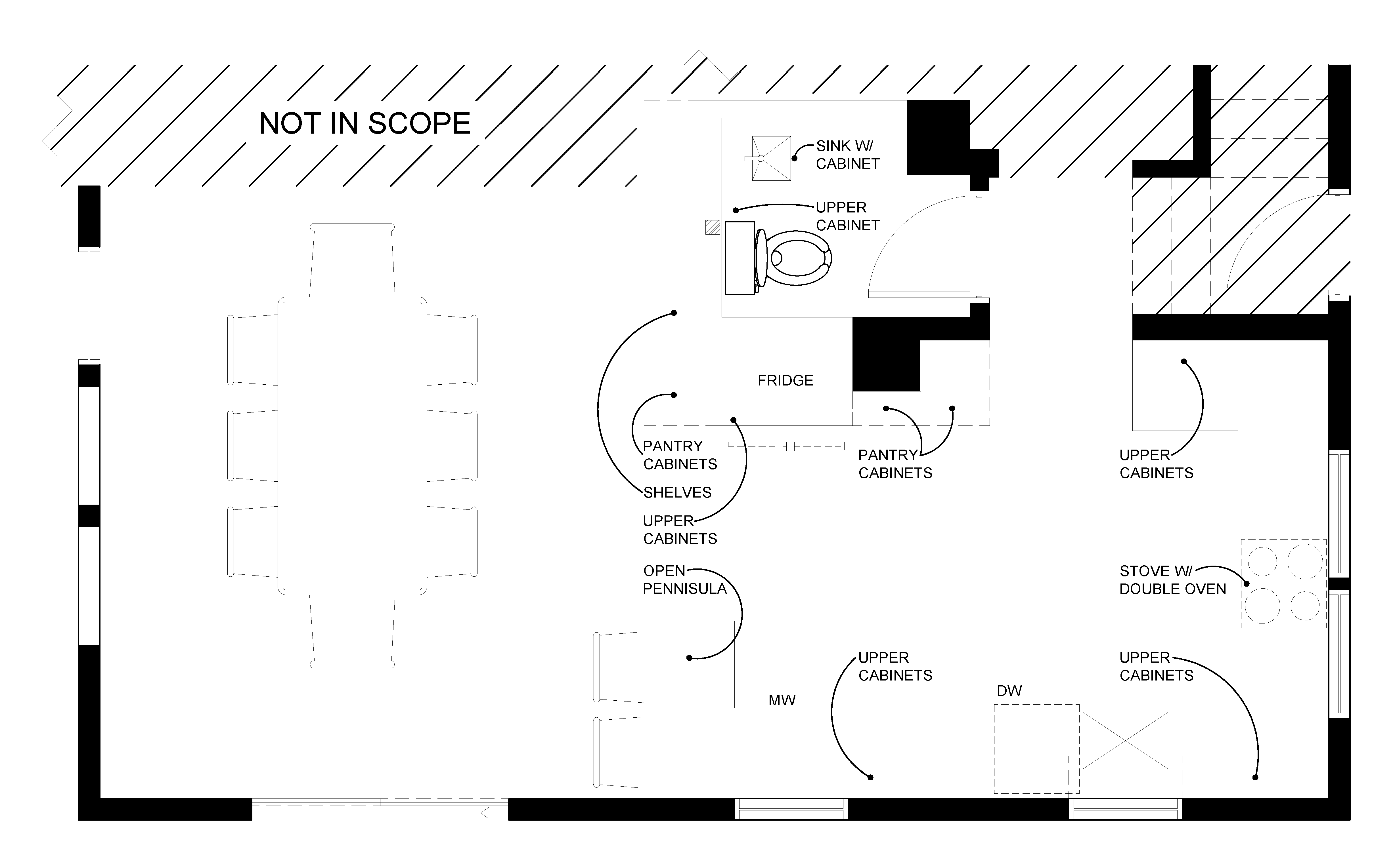
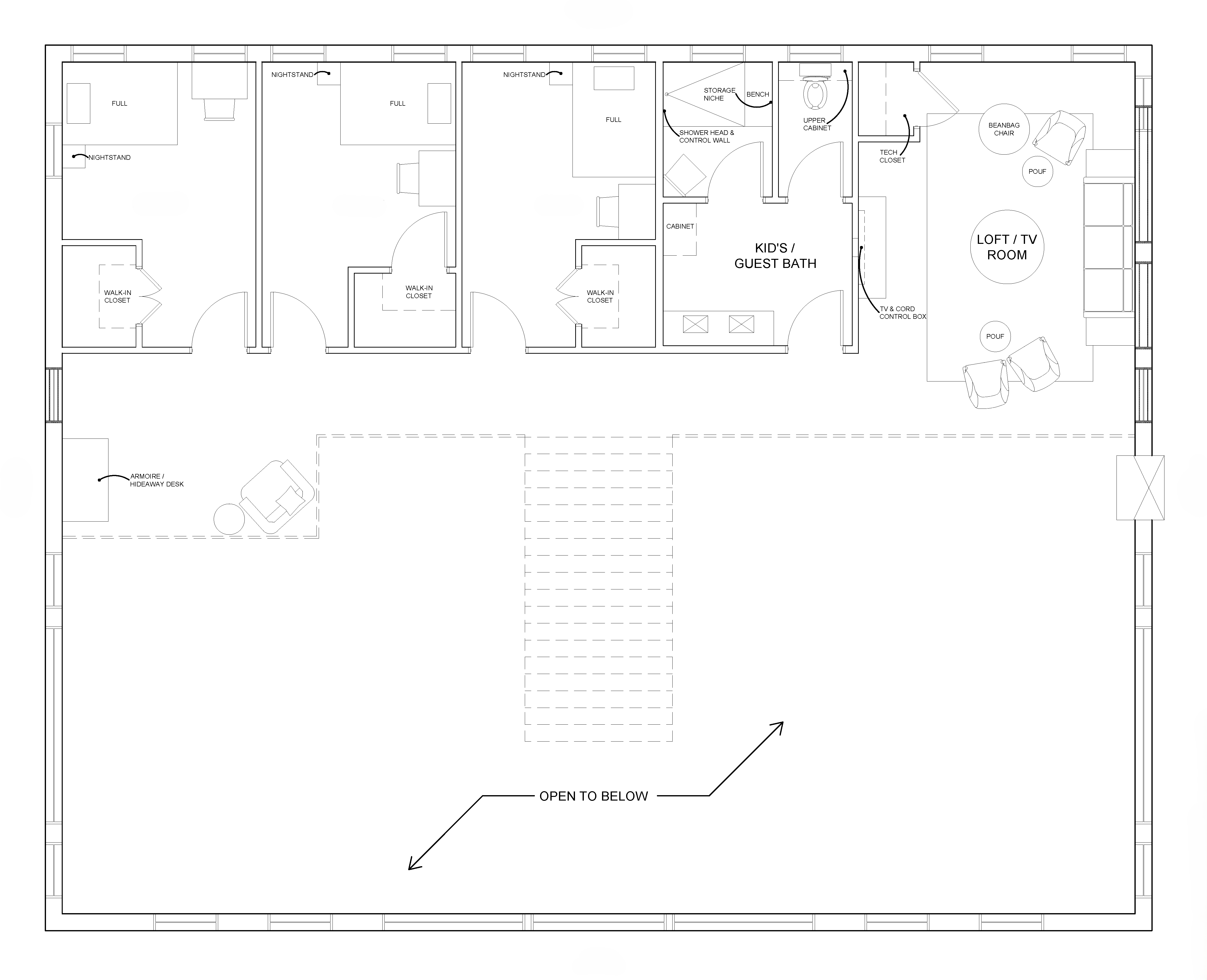
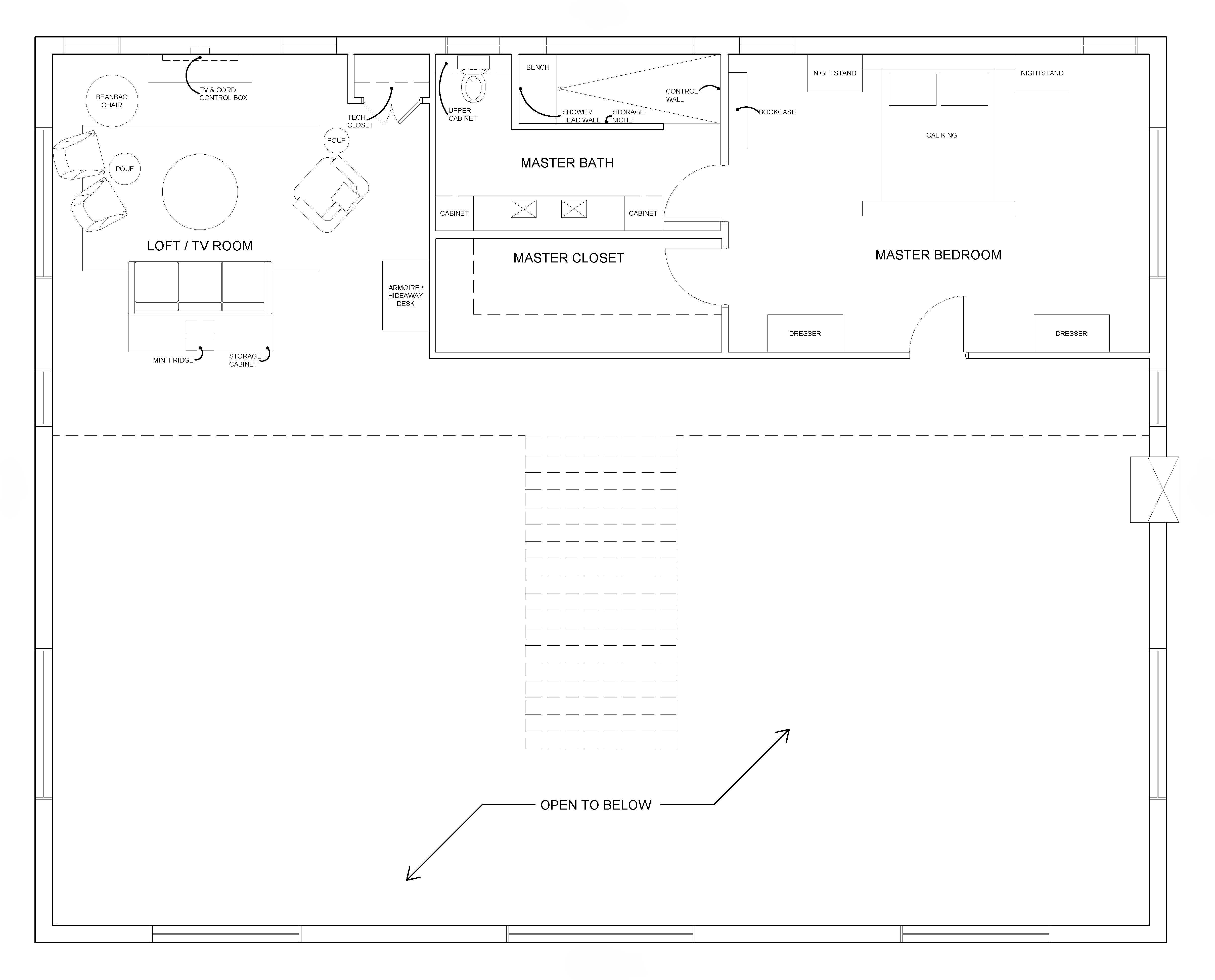
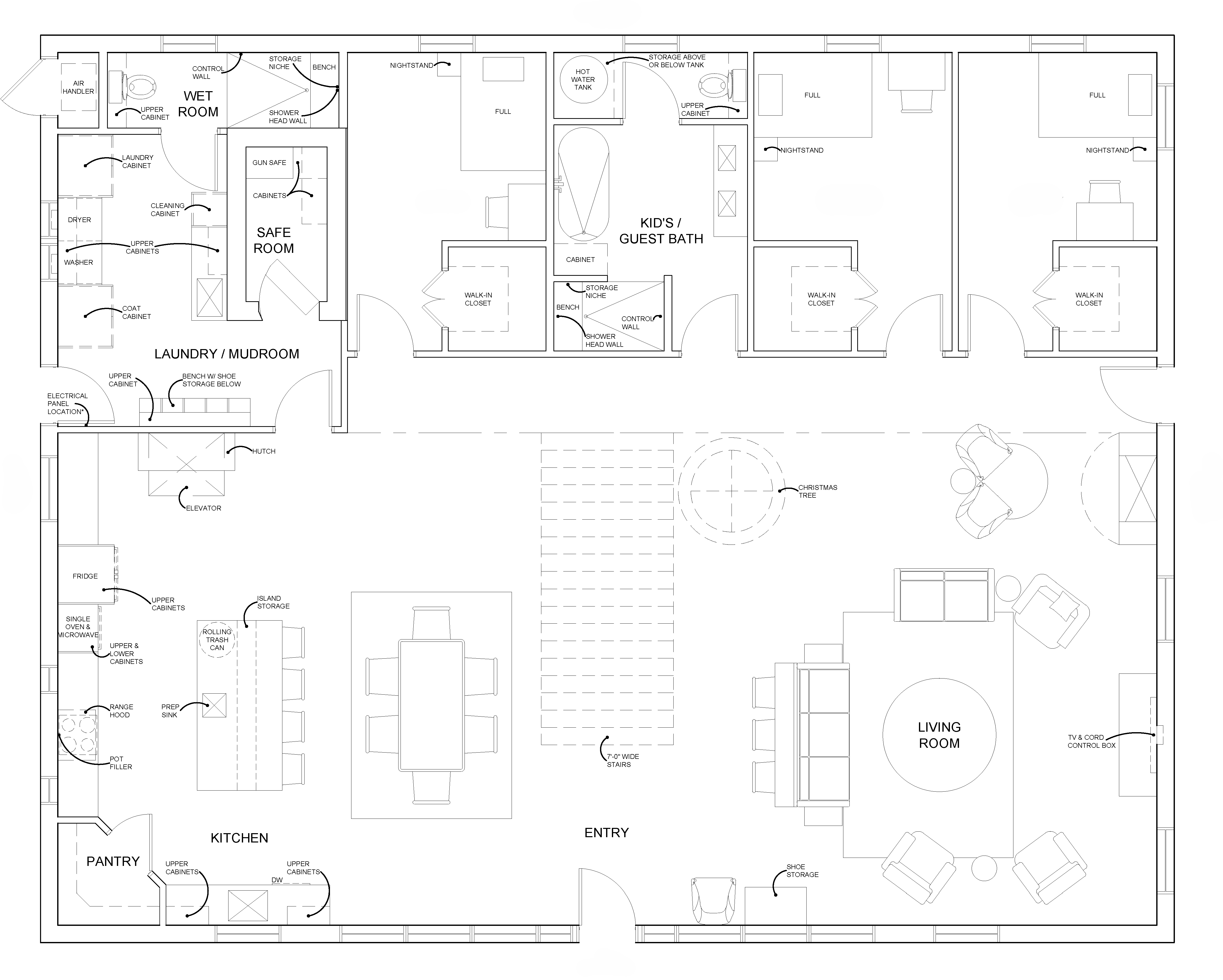
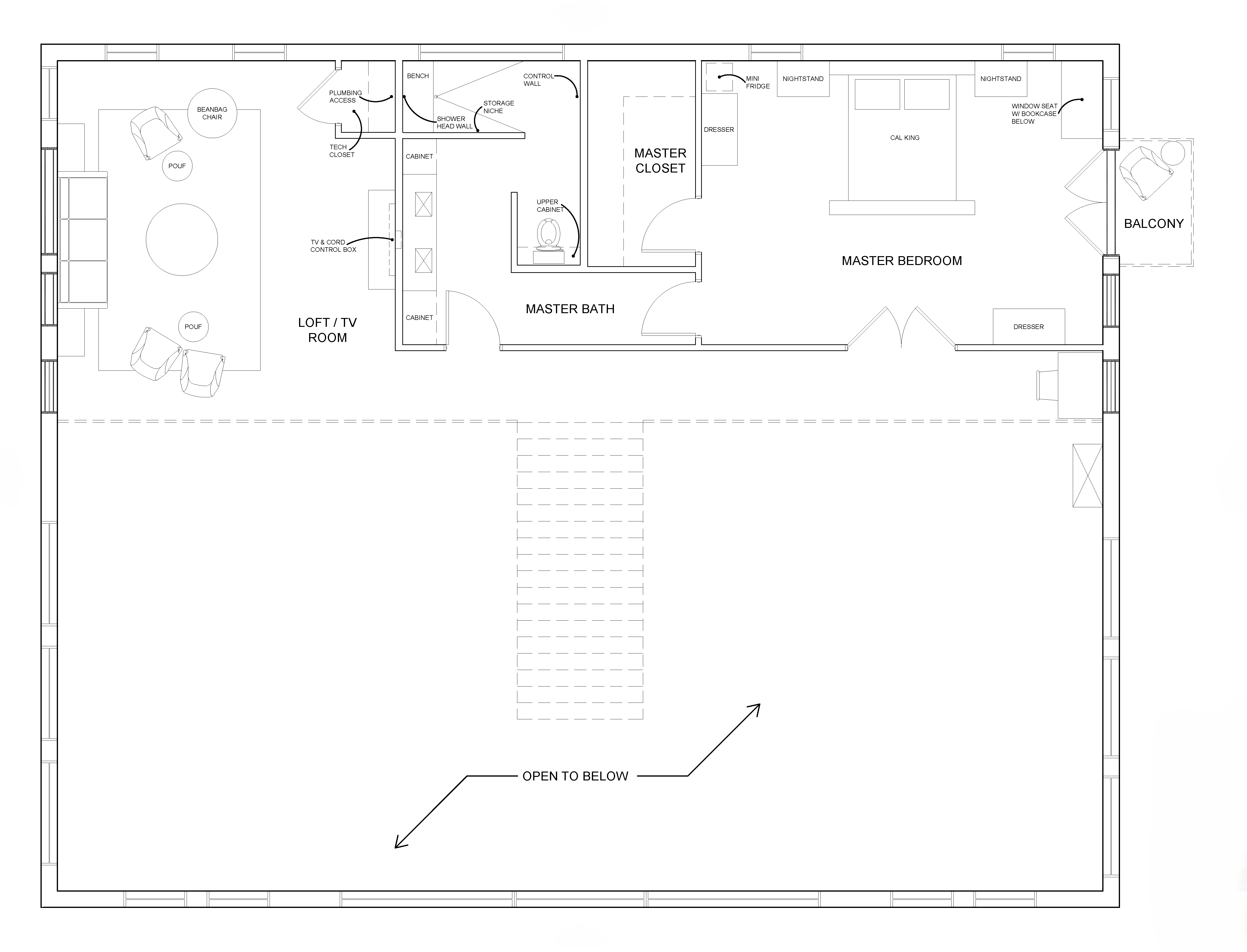
FAMILY LODGE
These clients knew a lot of what they wanted and needed for their family of 5, but didn’t know how to bring it to life. A custom home with a log cabin feel in the country with vaulted ceilings, a loft, safe room, and planning for a future elevator are just some of the jewels in this house. We started with 3 plans and then did some final tweaking to get the clients dream plan. Which one would you choose?
















































